新三水网站-新三水淼才网-佛山相亲派

查看: 45108|回复: 51

恭喜博雅滨江的业主们,幼儿园终于要开建了?

[复制链接]
发表于 2022-7-4 09:37 | 显示全部楼层 |阅读模式 | 来自广东
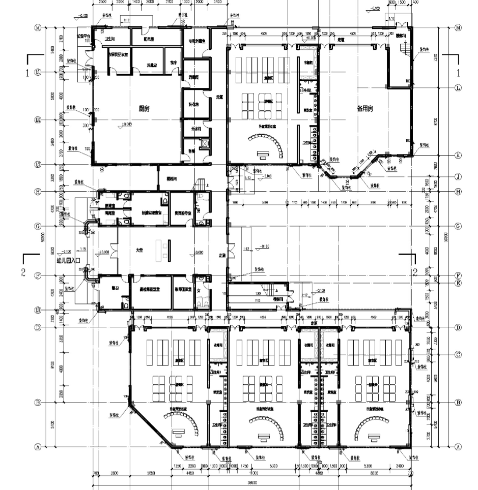
7月3日,佛山市自然资源局公布了关于《博雅滨江花园幼儿园》的规划许可批前公示,公示内容包括:幼儿园基底面积1503.54平方米;建筑面积4720.28平方米,其中计容面积4692.28平方米,建筑层数4层,建筑高度17.30米等。众人期盼已久的幼儿园终于要开建了?


QQ截图20220704093707.png


QQ截图20220704093300.png

(幼儿园规划图)

回复

使用道具 举报

发表于 2022-7-4 10:00 手机网页版 | 显示全部楼层 | 来自广东
喜大普奔
回复

使用道具 举报

0

鲜花

321

回帖

279

积分

中鱼

Rank: 2

发表于 2022-7-4 15:48 手机网页版 | 显示全部楼层 | 来自广东
每次路过都是一片荒地
回复 支持 1 反对 0

使用道具 举报

0

鲜花

874

回帖

411

积分

中鱼

Rank: 2

发表于 2022-7-4 11:36 手机网页版 | 显示全部楼层 | 来自广东
孩子都上小学了
回复 支持 1 反对 0

使用道具 举报

0

鲜花

1529

回帖

2303

积分

铜鱼

Rank: 4

发表于 2022-7-4 10:12 手机网页版 | 显示全部楼层 | 来自广东
等得长颈鹿都上大学了
回复 支持 1 反对 0

使用道具 举报

15

鲜花

1万

回帖

6675

积分

金鱼

Rank: 8Rank: 8

发表于 2022-7-4 10:42 | 显示全部楼层 | 来自广东
话说保利幼儿园点解仲未见招生?
回复 支持 反对

使用道具 举报

1

鲜花

1046

回帖

558

积分

大鱼

Rank: 3Rank: 3

发表于 2022-7-4 11:30 手机网页版 | 显示全部楼层 | 来自广东
这次来真的?
回复 支持 反对

使用道具 举报

0

鲜花

165

回帖

852

积分

大鱼

Rank: 3Rank: 3

发表于 2022-7-4 11:48 手机网页版 | 显示全部楼层 | 来自广东
已经结婚了
回复 支持 反对

使用道具 举报

0

鲜花

1137

回帖

541

积分

大鱼

Rank: 3Rank: 3

发表于 2022-7-4 11:52 手机网页版 | 显示全部楼层 | 来自广东
刚出生的小朋友不知道能不能读上
回复 支持 反对

使用道具 举报

0

鲜花

968

回帖

433

积分

中鱼

Rank: 2

发表于 2022-7-4 12:00 手机网页版 | 显示全部楼层 | 来自广东
终于要开建了么?
回复 支持 反对

使用道具 举报

发表于 2022-7-4 12:19 手机网页版 | 显示全部楼层 | 来自广东
开建!
回复

使用道具 举报

您需要登录后才可以回帖 登录 | 注册账号

本版积分规则