新三水网站-新三水淼才网-佛山相亲派

查看: 5072|回复: 17

3个套房17米阳台 三水惊现豪宅新盘!174-288㎡大平层户型图曝光

[复制链接]

1

鲜花

8

回帖

5934

积分

实习版主

Rank: 6Rank: 6

发表于 2023-12-22 11:46 | 显示全部楼层 |阅读模式 | 来自广东
三个套房,17米阳台,三水又出豪宅新盘!
日前,房叔获悉,钧明三水新盘已正式定名钧明左岸壹号,项目由4座住宅楼和2座商铺组成,主推138-288㎡大平层。
ab93d8d1b521a7c724edbe78f75e4757.png


1bdb3a04d93cc3ed0955aeed1d190972.png

其中,建面约288㎡的户型和约174㎡户型已经提前曝光。

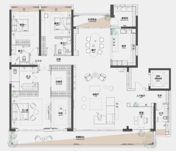
项目首推即甩出“王炸”户型——建面约288平的五房两厅双阳台大平层,一梯一户,且整个小区仅此1栋,共60套。

该户型采用3套间+1家政房+1多功能房设计,同时主卧设有超大衣帽间、书房和卫浴,尺度相当豪华。

而最大的亮点是,客厅与主卧连接的双联阳台,长约17米,如此高配的超级景观阳台,在佛山豪宅圈也是少见。

5e958b22c870ab5de6ac01b1e33e2106.png

再来看看建面约174平的户型。该户型涵盖四房两厅双阳台,采用双套间设计,动线分离,保持私密性。

其中次主卧可作为长辈房,客卧可作为儿童房,满足三代同堂的改善需求。另外,主卧还设计了L型景观飘窗,延伸视野。

景观阳台约7.6米,可望江园双景。

2b3c2b4fdc70fdd2cead37cdfb66400c.png



此外,该项目规划图和园林效果图也同步曝光。

区别于板块其他新盘,左岸壹号外立面采用玻璃幕墙,配有大面积落地玻璃。

|项目效果图从效果图看,左岸壹号的园林以“水”贯穿全园,采用大面积水域造景,并融合岭南文化设计场景。

6671cd961aa6eedb7a875d5afb88047f.png


| 项目园林效果图


6acf2da0b6ed1c6d3acef109d1360c1e.png


| 项目园林效果图


871137bd0ee5b5a1752bed207c3a6825.png
对于左岸壹号这个项目,可能很多人会觉得有点陌生,它好像是突然冒出来一样!房叔翻阅资料,发现“钧明左岸壹号”正是此前公示过的“临江尚苑”项目。

该项目其中一部分地块为钧明于2022年7月斩获的三水区西南街道广海中路二街9号地块,地块占地仅4079㎡,项目就位于广海大道东侧,左岸公园北侧。彼时,楼面价约2045元/㎡(扣除无偿移交面积9797.59㎡,折合楼面地价约3935元/㎡)。

4f26c02a9b7054ae96f83194f8e2ab47.png

|航拍实景图



按照拿地条件,项目要求宗地建设住宅户型套数不低于130套,建面100㎡以下的住宅户型不少于总住宅户型套数的20%。此外,项目还要求无偿配建套内建筑面积不少于7465.06㎡的回迁安置房。其中,住宅套内建筑面积不少于7327.47㎡,共115套,商业套内建筑面积不少于137.59㎡,共2套。

2023年9月中旬,佛山市自然资源局三水分局发布了两宗地块规划条件合并的批前公示。

根据当时规划内容,原位于佛山市三水区西南街道广海大道中9号地块(规划条件编号为440607201400133号)与原位于佛山市三水区西南街道广海中路二街9号地块(规划条件编号为440607202200067号)规划条件合并。

合并后,地址为佛山市三水区西南街道广海大道中9号地块,总用地面积为19613.30平方米,用地性质为二类居住用地兼容商业用地(兼容商业计容建筑面积≤30001.20平方米)。

6c1a58db9ef821c51b64d32841d7295e.png

|来源佛山市自然资源局三水分局


综合技术经济指标为:15%≤建筑密度(D)≤40%,19613.30平方米<总计容建筑面积≤90299.26平方米,绿地率(GR)≥25%,建筑高度(H)≤120米。

取消原地块用地红线重合处建筑退让要求,其余内容按原规划条件执行。

1c7a0467859db8c7260b80d8ef414760.jpg

|来源佛山市自然资源局三水分局两宗地块合并后,整个项目推广名为“钧明左岸壹号”!

db578aeeed595cc676e148f1911089eb.jpg

|项目区位图


1db74f618ea5aebeeee60e78c4587960.png

今年6月6日,佛山市自然资源局三水分局发布的《关于三水区西南街道广海大道中二街7、9号地块9座旧楼征拆项目回迁选房活动的通知》中,公布了该临江尚苑规划方案图和回迁楼标准层平面图。

0999bfb08d3a7627373d80981b2fca72.jpg

|来源佛山市自然资源局三水分局



据该项目规划方案图显示,该楼盘共规划4栋36-38层的高层住宅楼和2栋商铺楼,其中1栋住宅楼带底层商业。

3栋为三梯六户南北户型,且大部分为回迁房,由建面约90m²-126m²的三房两卫或四房两卫构成。

4845d2a36263131c5079a7d0a689b6af.png

|来源佛山市自然资源局三水分局


其中,套内面积70m²和80m²的是北向三房两卫户型,套内面积90m²的南北对流双阳台四房两卫户型;套内面积100m²的南向四房户型。

34d5bfc77f4671e51e64abad0a2fe377.png

由此可见,该项目除了大户型豪宅外,也有刚需户型和回迁房。

1dc754d1ba9e6c4a6e3811a69d8458db.png

从具体位置来看,项目位于广海大道中东侧,御海路西侧,即御景华庭旁,地处西南中心城区,前有左岸公园和西南涌,后有华侨中学和华侨中学附属小学,西临广海大道,地理位置优越。

bc41b40bb41016178a1758760de01282.jpg


项目周边教育资源丰富,涵盖海阳幼儿园、东海蓝湾幼儿园、三水华侨中学、三水华侨中学附属小学、西南第八小学、西南第十二小学等学校。

楼盘方面,则以二手房为主,包括御景华庭、新宇小区、蓝湾首付、东海蓝湾、心怡苑、荷景园、交大小区等。步梯楼均价在4000-6000元㎡左右,电梯房均价约8500元/㎡左右。

2beea2e3e948a3f0ebe415bdcd90249c.png

|新三水房产网截图


据了解,目前该项目已在钧明汇商场1楼中庭开放外展点,预计明年开放营销中心,吹风价待定。你对左岸壹号这个项目怎么看?

来源:三水楼市

楼市交流群.jpg


7b3171c0d6efa8e42846dace8037588d.png






回复

使用道具 举报

0

鲜花

57

回帖

79

积分

中鱼

Rank: 2

发表于 2023-12-22 11:56 手机网页版 | 显示全部楼层 | 来自广东
看来三水卧虎藏龙
回复 支持 反对

使用道具 举报

0

鲜花

1071

回帖

405

积分

中鱼

Rank: 2

发表于 2023-12-22 11:58 手机网页版 | 显示全部楼层 | 来自广东
有钱人的游戏
回复 支持 反对

使用道具 举报

0

鲜花

1040

回帖

352

积分

中鱼

Rank: 2

发表于 2023-12-22 12:04 手机网页版 | 显示全部楼层 | 来自广东
1座是豪宅,3座是回迁房
回复 支持 反对

使用道具 举报

0

鲜花

849

回帖

411

积分

中鱼

Rank: 2

发表于 2023-12-22 13:44 手机网页版 | 显示全部楼层 | 来自广东
288平的三个套房
回复 支持 反对

使用道具 举报

0

鲜花

913

回帖

427

积分

中鱼

Rank: 2

发表于 2023-12-22 14:02 手机网页版 | 显示全部楼层 | 来自广东
猜猜它能卖到多少钱?
回复 支持 反对

使用道具 举报

0

鲜花

1137

回帖

541

积分

大鱼

Rank: 3Rank: 3

发表于 2023-12-22 14:06 手机网页版 | 显示全部楼层 | 来自广东
阳台送一半吗?
回复 支持 反对

使用道具 举报

10

鲜花

2886

回帖

8662

积分

金鱼

Rank: 8Rank: 8

发表于 2023-12-22 15:15 | 显示全部楼层 | 来自广东
回迁的90方4房,100方反而3房。优秀
QQ:474422688
回复 支持 反对

使用道具 举报

13

鲜花

2万

回帖

2万

积分

神鱼

Rank: 10Rank: 10Rank: 10

发表于 2023-12-22 16:55 手机网页版 | 显示全部楼层 | 来自广东
288+100+50=438万=乡下3幢1000平独墅!无5000万都唔好意思入住!
回复 支持 反对

使用道具 举报

0

鲜花

386

回帖

153

积分

中鱼

Rank: 2

发表于 2023-12-25 11:42 手机网页版 | 显示全部楼层 | 来自广东
999 发表于 2023-12-22 16:55
288+100+50=438万=乡下3幢1000平独墅!无5000万都唔好意思入住!

什么算法你这个
回复 支持 反对

使用道具 举报

您需要登录后才可以回帖 登录 | 注册账号

本版积分规则