新三水网站-新三水淼才网-佛山相亲派

查看: 33792|回复: 38

三水新城9字头起?自带幼儿园还能望湖景!是捡漏还是....

[复制链接]

1

鲜花

8

回帖

5934

积分

实习版主

Rank: 6Rank: 6

发表于 2021-12-31 15:18 | 显示全部楼层 |阅读模式 | 来自广东
                                                                                                   
“三水新城9字头起!!”
在上个月关于保利时代这个楼盘的宣传信息遍地飞,楼市交流群里也引起了众多淼粉的讨论。


9cb94d94338cc604b955fa4807a42cf1.png
聊天截图

到底实情是怎么样的呢!有没有这些优惠呢?房叔这周就来将保利时代的底摸个干净。


79091ee3aa5fce5ae2b1a4395b293c62.png

保利时代是由佛山市三水区源和置业有限公司打造而成,项目总建筑面积约18万容积率:2.8绿化率:约35%,总户数1137户


27d2b2ec1b6135bddd934301d9573f24.png
实景图

根据房叔了解,目前在售楼层仅剩5座与8座,楼层数均为33层。关于之前提到的9字头的优惠价格确实存在,不过仅限于5座的户型


562629b098dd5da21935d7fe4fb70276.jpg
沙盘图

5座涵盖约95㎡和112㎡的户型,为两梯六户,精装交付,不过目前楼层选择较少,交楼时间约在2022年的8月

而8座则是目前主推的楼栋,涵盖面积约为99㎡/115㎡/125㎡的户型,两梯四户,同样是精装交付,交楼时间约在2022年的10月


597eea58a6ec60413d7e2b2d6ff1400b.png
实景图

据现场看,各楼栋外立面施工基本完成。


148d297c017109ab68e9d2354a0e0175.png

户型方面,房叔先替你们看了约99㎡以及115㎡面积段的房子。


d464b3b03a250ee98bc59e7ee33ea9f3.png
99㎡户型图

首先看的是约99㎡的样板房,套内面积约为79平两厅三房一厨两卫

户型较为方正,典型的竖厅设计。


68e10f76a0bdf317d75ac3c5a875eea2.jpg
样板房实景图

厨房,餐厅,客厅连通布局,方便又大气。


7a1994cf72bd6bb99e5bd07230c6dfdc.jpg

9d53a4267c69dfe422302b7bf1594509.jpg
样板房实景图

其中,客厅的阳台与次卧相连,采光通风不成问题。


7ed571889d432f87efa44707960a86b7.jpg
样板房实景图

主卧套间设计,带飘窗观景一流,带独立卫浴,私密性强。


5f28f9d2be9e4141bd35efe9e58a3393.jpg
样板房实景图

其他卧室格局分明,均带窗户,光线充足。


bc6bea462f14ea635963a4d33083692e.jpg
样板房实景图

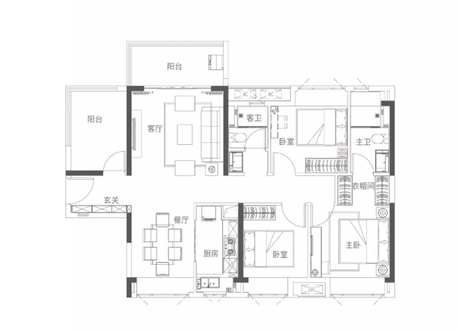
看完了约99㎡的样板房,房叔又去看了元旦要新推的约115㎡的样板房,3+1房两厅两卫


12629812a626dee5eb7a49037511108b.png
115㎡户型图

相较于99㎡,115㎡同样是餐客厅一体,不过稍微阔绰了些。


2103e411a6f903ed54ec6022ef109b3d.jpg

3d5600ef0ae76fc6f8588e48ca0fe606.png

bef43189e55656a11ca2b39650989b6d.jpg

017b7a8747a6d1533f2b385845b0f984.jpg
样板房实景图

主卧大套房设计,带步入式衣帽间和私人卫浴。


e194af7399d119314256d988af9e683d.jpg
d9cacdd92bc591f380c98dd97420dc2c.jpg
样板房实景图

两个次卧空间都够大,自带飘窗,光线足、视野好。


def72fc8a19c561f14855ac46b0c418b.jpg

2b310f994ba64656765c86be8848b608.jpg
样板房实景图

值得一提的是,99㎡和115㎡户型的厕所,两者都是将洗手台和浴室分开的,将洗手台独立在厕所的门口,方便了日常的使用。


21f11a4058375a63b9d96f86b353a4f2.jpg
样板房实景图


c5b6a7ca37e1596922a7db3bad329d14.png
看完户型,当然就是看配套了。项目自带幼儿园(销售中心所在地)已建设完毕。


e55adec98f5b42be07d9eccda37d2fb2.jpg
实景图

公区还设有乐活跑道、游泳池、儿童乐园、邻里会客厅等优质配套。


cacbc840f7c643acbe5d27dad00485aa.png
示意图


10112a70d756586ecaf72e1af7672f00.png
对外的话,项目位于三水新城,必不能忽略的就是交通。
交通方面,三水新城规划以三水北站为核心,打造TOD新城启动区。


1a257077fdb9b4830913b1c366712d53.jpg
区位图


商业配套方面,项目周边分布三水万达广场、百利达广场、三水广场、天聚广场(在建)及三水新城CBD——碧桂园·佛山双子星城2.5产业园等一系列丰盛商务娱乐配套。


1a745c13c83dc02b34bb8ced8f806670.png

baedab59994f6a7aa790cff49419cb18.jpg
实景图


文化教育资源方面,项目周边有省一级云东海学校,海蓝公立幼儿园、三水新城幼儿园,佛山市华中师范大学附属学校(已于今年9月正式招生开学),规划中的新城小学以及三水文化活动中心


be73ad7417d024b70de555a6b43b4446.jpg
实景图

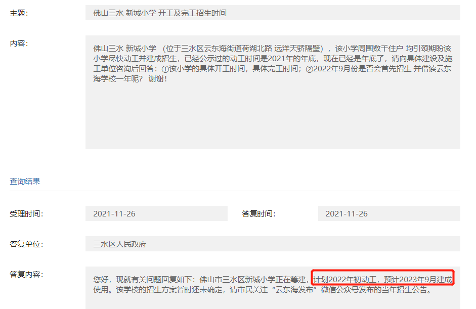
值得一提的是,11月在政府网站的互动交流中,有网友询问了新城小学的具体开工时间以及招生计划。三水区人民政府回应:将于2022年动工的消息,预计2023年建成投用


eb22ece441e908ef8a19b99c01adc0e2.png

64880797c157f8e2db05af9143edeb8a.jpg
图书馆一层室外阅读区

另外项目周边内还有在建中的南方医科大学珠江医院三水分院(三水新城医院)三水新城医院是一所现代化三甲综合医院,预计2021年年底投入使用。


e50e876da6356dedba0aa08c7a7e77d5.jpg
实景图


f9b4fe4e1c06509dfb1ff8942d42cabb.png

文章最后,大家最关心的价格问题就要揭开谜底了

目前项目约99㎡户型的楼层可选余地不大,拿房叔这次看的15层户型为例,带装折后单价约10500元/㎡。除此以外,还需同时购买一个车位。


1641268883(1).jpg
仅供参考


25d0660edbb4732c3ac5dfbf109430fb.png
项目预售证

总得来说,项目宣传的优惠价格是存在的,但是楼栋和层数都有限制,5栋位于路边,可能会有些许的噪音影响。其他楼栋价格与周边还是有一点价格优势的。项目约115㎡户型将在元旦推新,大家可以感兴趣可以自行前去,不过周边板块楼盘选择较多,房叔建议大家可以多看看,多对比。

附上三水新城项目一览表仅供大家参考。


9e782de22ce09cd53c80ac99e6b0527f.png
示意图


回复

使用道具 举报

0

鲜花

7

回帖

654

积分

大鱼

Rank: 3Rank: 3

发表于 2022-1-14 16:32 手机网页版 | 显示全部楼层 | 来自广东
2梯6户会等电梯会发癫
回复 支持 2 反对 0

使用道具 举报

0

鲜花

561

回帖

394

积分

中鱼

Rank: 2

发表于 2022-1-17 14:45 | 显示全部楼层 | 来自广东
有人会买吗
回复 支持 1 反对 0

使用道具 举报

0

鲜花

495

回帖

394

积分

中鱼

Rank: 2

发表于 2021-12-31 15:25 | 显示全部楼层 | 来自广东
9k肯定天地楼
回复 支持 反对

使用道具 举报

7

鲜花

1336

回帖

8078

积分

金鱼

Rank: 8Rank: 8

发表于 2021-12-31 15:33 手机网页版 | 显示全部楼层 | 来自广东
好像是二梯六户。
回复 支持 反对

使用道具 举报

3

鲜花

4927

回帖

8065

积分

金鱼

Rank: 8Rank: 8

发表于 2021-12-31 15:33 手机网页版 | 显示全部楼层 | 来自广东

还真不是。。现在楼价跌了。
回复 支持 反对

使用道具 举报

0

鲜花

471

回帖

286

积分

中鱼

Rank: 2

发表于 2021-12-31 15:39 | 显示全部楼层 | 来自广东
之前又话8字头
回复 支持 反对

使用道具 举报

0

鲜花

1367

回帖

3811

积分

银鱼

Rank: 6Rank: 6

发表于 2021-12-31 16:24 手机网页版 | 显示全部楼层 | 来自广东
市场商场都没有,很不方便。
回复 支持 反对

使用道具 举报

6

鲜花

1532

回帖

3161

积分

银鱼

Rank: 6Rank: 6

发表于 2021-12-31 17:10 手机网页版 | 显示全部楼层 | 来自广东
买买买,唔买唔系中国人系列
回复 支持 反对

使用道具 举报

0

鲜花

328

回帖

2462

积分

铜鱼

Rank: 4

发表于 2022-1-4 11:03 手机网页版 | 显示全部楼层 | 来自广东
七天内支付12000万?
回复 支持 反对

使用道具 举报

0

鲜花

20

回帖

2782

积分

铜鱼

Rank: 4

发表于 2022-1-4 12:11 手机网页版 | 显示全部楼层 | 来自广东
买8座是要捆绑销售一个车位?

回复 支持 反对

使用道具 举报

0

鲜花

599

回帖

388

积分

中鱼

Rank: 2

发表于 2022-1-4 14:14 | 显示全部楼层 | 来自广东
有个图书馆系几好,但系果边其他配套跟不上
回复 支持 反对

使用道具 举报

您需要登录后才可以回帖 登录 | 注册账号

本版积分规则