新三水网站-新三水淼才网-佛山相亲派

查看: 51905|回复: 67

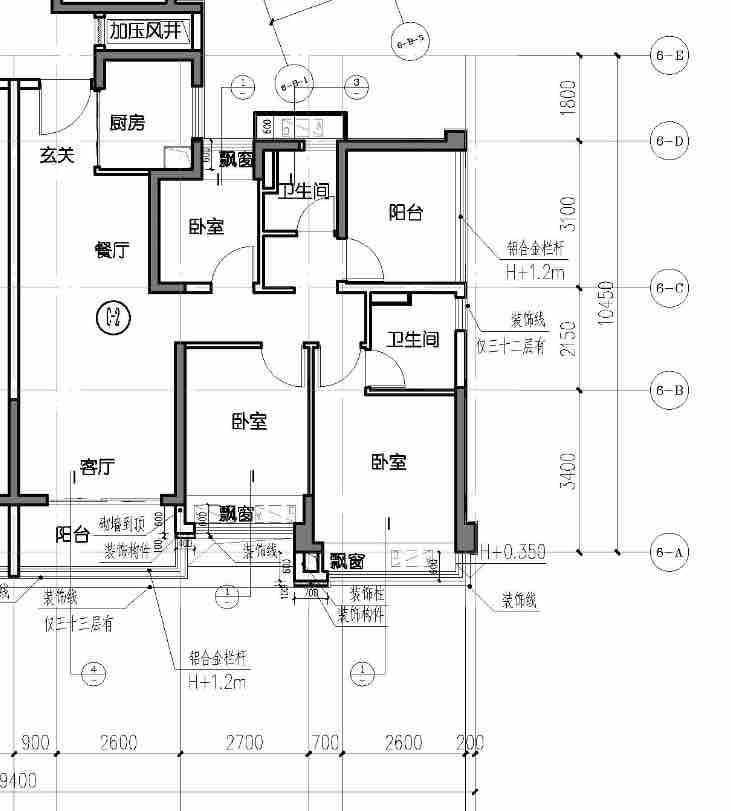
好浪费!和玺的99平居然做4房

[复制链接]

0

鲜花

35

回帖

190

积分

中鱼

Rank: 2

发表于 2022-2-10 14:06 手机网页版 | 显示全部楼层 |阅读模式 | 来自广东
现在还有99做4房的,是不是公摊少?99实用80?送15方?
感觉个厅可能得3.1,测高2.9实际~~~但是4个房,都有窗几好。
20220210140617front1_0_219012_FrCylz_xCP0ezHcLLg7AL93MpLZS.jpg
回复

使用道具 举报

3

鲜花

4927

回帖

8065

积分

金鱼

Rank: 8Rank: 8

发表于 2022-2-10 14:19 手机网页版 | 显示全部楼层 | 来自广东
结果不伦不类,房细,饭厅细。
刚需买不起,改善型的觉得住唔落。。。
回复 支持 4 反对 0

使用道具 举报

0

鲜花

1201

回帖

2206

积分

铜鱼

Rank: 4

发表于 2022-2-14 14:19 | 显示全部楼层 | 来自广东
预测建筑面积        99.75       
预测套内面积        77.64       
预测分摊面积        22.11
回复 支持 2 反对 0

使用道具 举报

0

鲜花

2387

回帖

4742

积分

银鱼

Rank: 6Rank: 6

发表于 2022-2-14 23:47 手机网页版 | 显示全部楼层 | 来自广东
何来四方?卧室三个,不是厨房也算房吧你?阳台那个就很大是当了房间算吗?
回复 支持 1 反对 0

使用道具 举报

1

鲜花

743

回帖

3080

积分

银鱼

Rank: 6Rank: 6

发表于 2022-2-11 16:45 手机网页版 | 显示全部楼层 | 来自广东
农村实用99方3房房还大
回复 支持 1 反对 0

使用道具 举报

0

鲜花

3154

回帖

645

积分

大鱼

Rank: 3Rank: 3

发表于 2022-2-10 14:33 手机网页版 | 显示全部楼层 | 来自广东
三房比较舒服 硬装4房 住着压抑
回复 支持 1 反对 0

使用道具 举报

0

鲜花

714

回帖

2385

积分

铜鱼

Rank: 4

发表于 2022-2-10 14:14 手机网页版 | 显示全部楼层 | 来自广东
边度来的4房,明明3房。。
回复 支持 0 反对 0

使用道具 举报

0

鲜花

183

回帖

450

积分

中鱼

Rank: 2

发表于 2022-2-10 14:39 手机网页版 | 显示全部楼层 | 来自广东
餐厅太小,阳台的设计有点浪费了
回复 支持 反对

使用道具 举报

0

鲜花

251

回帖

1668

积分

铜鱼

Rank: 4

发表于 2022-2-10 14:46 手机网页版 | 显示全部楼层 | 来自广东
四房几好,可以多个地方住人或放物品
回复 支持 反对

使用道具 举报

0

鲜花

3465

回帖

5793

积分

金鱼

Rank: 8Rank: 8

发表于 2022-2-10 14:49 | 显示全部楼层 | 来自广东
缮deng 发表于 2022-2-10 14:14
边度来的4房,明明3房。。

你有点优秀


我就是我 不一样的烟火
回复 支持 反对

使用道具 举报

0

鲜花

3465

回帖

5793

积分

金鱼

Rank: 8Rank: 8

发表于 2022-2-10 14:50 | 显示全部楼层 | 来自广东
牺牲左公共空间咯
适合二胎家庭
我就是我 不一样的烟火
回复 支持 反对

使用道具 举报

0

鲜花

3465

回帖

5793

积分

金鱼

Rank: 8Rank: 8

发表于 2022-2-10 14:55 | 显示全部楼层 | 来自广东
总结
这种房适合第一胎生女
虽然穷但家里有皇位继承
顶硬上生二胎的家庭


我就是我 不一样的烟火
回复 支持 反对

使用道具 举报

发表于 2022-2-10 15:07 手机网页版 | 显示全部楼层 | 来自广东
提示: 作者被禁止或删除 内容自动屏蔽
回复 支持 反对

使用道具 举报

您需要登录后才可以回帖 登录 | 注册账号

本版积分规则