新三水网站-新三水淼才网-佛山相亲派

查看: 8991|回复: 17

投资超1亿!占地约2.8万㎡!三水再添一大型商业综合体!

[复制链接]

1

鲜花

8

回帖

5934

积分

实习版主

Rank: 6Rank: 6

发表于 2022-11-29 15:46 | 显示全部楼层 |阅读模式 | 来自广东

三水乐平配套再加码!

近日,佛山市自然资源局三水分局发布了三水乐平智地禅道文化园建设项目的工程规划许可批前公示,公示截止时间12月6日。

828e229ecd2b4d76b58edda293a37dc2.png
|来源佛山市自然资源局

55fa9fec9499e8f47cf72656b2d20ccc.png
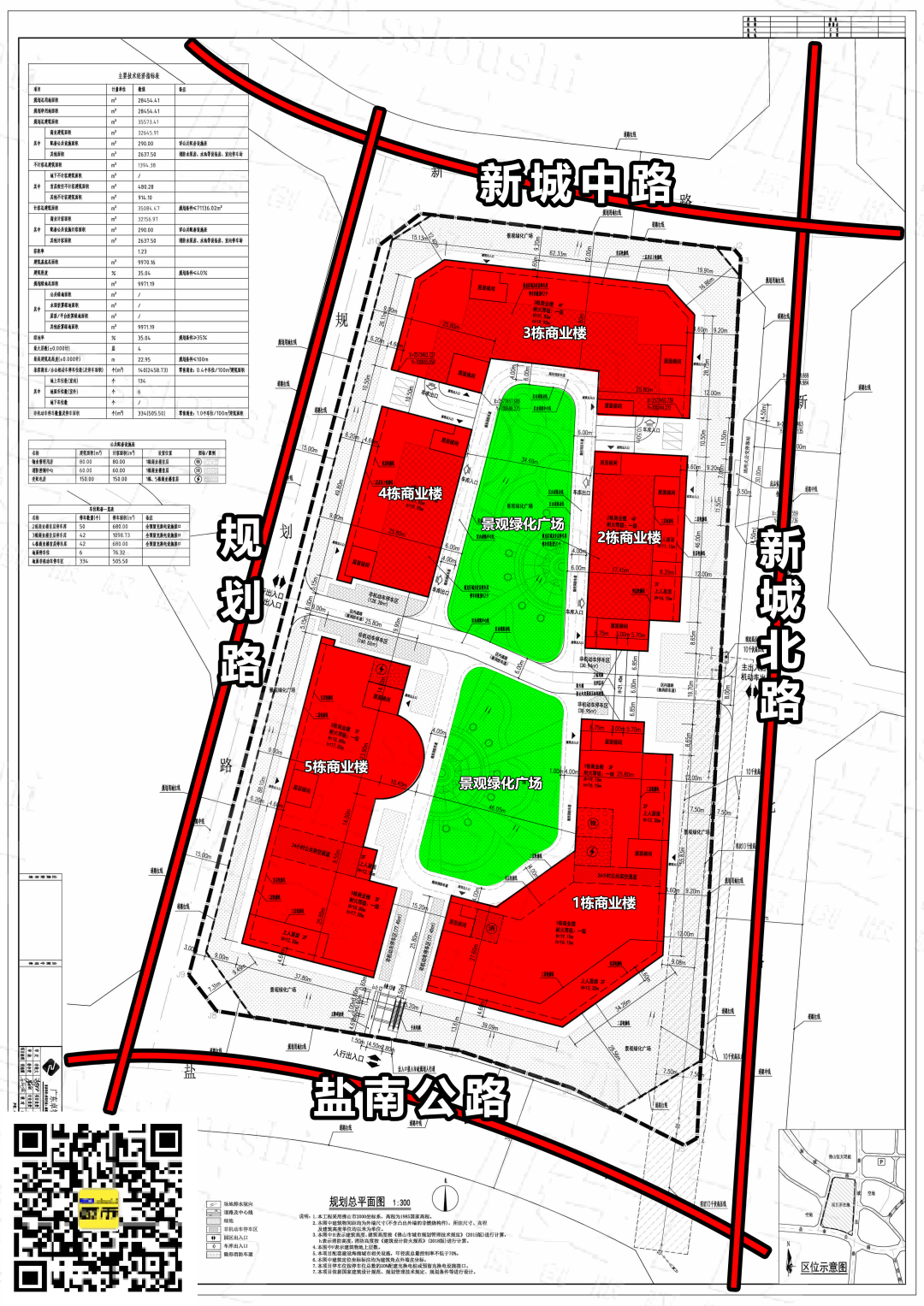
用地面积约2.8万㎡,打造5栋商业楼!

根据公示内容,乐平智地禅道文化园总占地面积28454.41㎡,总建筑面积35573.41㎡,建筑密度35.04%,容积率1.23,绿地率35.04%。

6137ffc30bb1dd63ac39868aed89aecc.png
|乐平智地禅道文化园效果图

规划图显示,乐平智地禅道文化园将打造5栋商业楼,其中1栋、5栋楼高三层,2-4栋楼高四层。另规划有两处景观绿化广场。

e251c6b0023af3f667b73d6fe518c350.png
|规划示意图

1栋商业楼

建筑面积8282.82㎡,建筑高度19.15m,建筑层数3层,建筑性质为物管用房、配电房、消防控制中心、商业。

475e12b5976175d28bd5e657c1ea1315.png
|规划示意图

2栋商业楼

建筑面积5075.81㎡,建筑高度22.95m,建筑层数4层,车位数50个,建筑性质为车库、商业。

e53ae7cefb398ca0cdab09f075a65568.png
|规划示意图

3栋商业楼

建筑面积9560.15㎡,建筑高度21.55m,建筑层数4层,车位数42个,建筑性质为车库、商业。

17f03d2c6c9bf40461c7075d013727af.png
|规划示意图

4栋商业楼

建筑面积4779.29㎡,建筑高度21.55m,建筑层数4层,车位数42个,建筑性质为车库、商业。

401b6bb709edf7019ccebde97ddd401f.png
|规划示意图

5栋商业楼

建筑面积7875.34㎡,建筑高度18.80m,建筑层数3层,建筑性质为配电房、商业。

3b253e1b4eb43f0c2e9a2c27ce49c72f.png
|规划示意图

24861eb95ee4616a43630df501363288.png
高标准商业综合体,投资额超1亿元!

房叔翻阅资料获悉,乐平智地禅道文化园拟打造为一个集茶产品集散交易、茶文化交流推广、茶专业职业培训于一体的高标准商业综合体。

项目总投资额超1亿元,配建约6000㎡的文化创意产业场馆,计划建设高端的硬件设施及引入先进的管理模式,引入上百家知名茶烟酒品牌店,同时聘请国内知名文化学者、设计师和工艺师前来授课、交流、访问。

75c917d668afa1c307d0f36d7bfe3bcb.png
|来源三水发布
e47f863325a31de30e2e8422c99db3fa.png
周边二手楼盘为主,均价7字头起!

根据公示,乐平智地禅道文化园位于三水区乐平镇乐平村委会禾里坑村“勒园”(土名),即佛山恒大珺庭南侧。

f00aa01d99377b77f8971b7847cfe174.png
|区位示意图

此外,根据地图显示,项目周边楼盘还有禹洲朗悦、乐平碧桂园四季峰景、盛凯尚城、锦溢华庭等,均价约7500-12000元/㎡。

633cfcef843cad6196907808e5777d1f.png
|区位示意图

最后,房叔想问:你居住在附近吗?对于乐平智地禅道文化园你期待吗?欢迎加入“三水城建发展交流群”或评论留言,与我们互动交流~三水城建发展交流群
1b595eb2656b99f217100f3b81763e5f.png

474b98a2c2f422b2ffcec51e5839262b.png

a7ed01576531765063377503d7b5f0c2.png


回复

使用道具 举报

0

鲜花

1752

回帖

4247

积分

银鱼

Rank: 6Rank: 6

发表于 2022-11-29 18:03 手机网页版 | 显示全部楼层 | 来自广东
一切都是为迎接经济复苏做好准备。乐平加油
回复 支持 1 反对 0

使用道具 举报

0

鲜花

988

回帖

477

积分

中鱼

Rank: 2

发表于 2022-11-29 15:48 手机网页版 | 显示全部楼层 | 来自广东
禅道跟商业体挂钩我也是醉了
回复 支持 反对

使用道具 举报

89

鲜花

1万

回帖

1万

积分

神鱼

Rank: 10Rank: 10Rank: 10

三水荣誉市民原创写手微信用户勋章

发表于 2022-11-29 17:17 手机网页版 | 显示全部楼层 | 来自广东
嘉州都延迟了,算吧啦
回复 支持 反对

使用道具 举报

发表于 2022-11-29 18:31 手机网页版 | 显示全部楼层 | 来自广东
1亿应该搞不出什么水花
回复 支持 反对

使用道具 举报

0

鲜花

561

回帖

394

积分

中鱼

Rank: 2

发表于 2022-11-30 07:47 手机网页版 | 显示全部楼层 | 来自广东
独树岗佬 发表于 2022-11-29 18:31
1亿应该搞不出什么水花

可以搞个浪花
回复 支持 反对

使用道具 举报

0

鲜花

561

回帖

394

积分

中鱼

Rank: 2

发表于 2022-11-30 07:47 手机网页版 | 显示全部楼层 | 来自广东
覆水难收 发表于 2022-11-29 15:48
禅道跟商业体挂钩我也是醉了

你以为禅道是什么
回复 支持 反对

使用道具 举报

0

鲜花

305

回帖

168

积分

中鱼

Rank: 2

发表于 2022-11-30 11:38 手机网页版 | 显示全部楼层 | 来自广东
现在的商业体不好弄啊
回复 支持 反对

使用道具 举报

0

鲜花

1752

回帖

4247

积分

银鱼

Rank: 6Rank: 6

发表于 2022-11-30 16:15 手机网页版 | 显示全部楼层 | 来自广东
美貌倾城与我 发表于 2022-11-30 11:38
现在的商业体不好弄啊

它是茶业为主,吃喝玩乐为副,和西南10个纯娱乐综合体不一样
回复 支持 反对

使用道具 举报

0

鲜花

255

回帖

186

积分

中鱼

Rank: 2

发表于 2022-12-1 07:59 手机网页版 | 显示全部楼层 | 来自广东
加州广场什么时候开业
回复 支持 反对

使用道具 举报

您需要登录后才可以回帖 登录 | 注册账号

本版积分规则