新三水网站-新三水淼才网-佛山相亲派

查看: 4771|回复: 17

高端局!三水新城将新建一栋含阅览室和文化活动中心的公交首末站综合楼~

[复制链接]

1

鲜花

8

回帖

5934

积分

实习版主

Rank: 6Rank: 6

发表于 2023-8-30 12:49 | 显示全部楼层 |阅读模式 | 来自广东

定了!三水新城将新增一个公交车首末站以及配建一栋包含交通站场管理房、阅览室和文化活动中心的综合楼!
日前,佛山市自然资源局三水分局发布了《云东海映海路公交车首末站建设项目综合楼》批后公示,并披露了该项目的规划图。


98a49c67446db1d6ceedeb5b18c5c1ff.png

公示显示,该项目位于三水区云东海街道映海路与韵丰路交界处的东北角,三江水韵篮球公园南侧。

整个项目分A、B两个区域,规划用地面积共6655.18平方米!

bffcf99c753d8664356ade2fb821c331.jpg
|项目区位图

其中A区规划用地面积3653.54㎡,主要以建筑为主,包括交通站场设施用地、项目配建的综合楼、洗手间、停车位!

交通站场用地面积2658.33㎡,建筑基底总面积652.86㎡,最大层数4层,最高建筑高度23.95m,绿地率35.05%!

规划机动车停车位17个,其中普通停车位10个,地面充电桩停车位6个,无障碍停车位1个!规划公交车停车位7个,非机动车停车位48个!

ba19e279be3076c981bd1893d878c3e5.jpg

B区规划用地面积3001.64㎡,主要以绿化为主。规划绿地面积2181.56㎡!

B区机动车停车位21个,其中18个地面普通停车位,2个充电桩停车位,1个无障碍停车位;非机动车停车位10个,绿地率72.68%!

项目紧挨加油站,北侧是三江水韵篮球公园。

abddc86c87c5261387391f98734f4ff4.jpg
|项目实景图

从航拍图可以看到,厕所已建好,公交车首末站也已基本建好,划出了上客区、落客区、候车区和洗车区!

地面停车位也做了划分!包括58个非机动车停车位和36个普通停车位。

3874e140b3bf18f013af24fb7dd7be70.png

目前,云东海映海路公交车首末站建设项目除了综合楼外,其他例如公交车首末站、停车场、洗手间等配套都已基本建设好,综合楼的建设也提上了日程!据了解,该综合楼规划占地面积652.86㎡,2258.48㎡,层高4层,总楼高25.8米!

337ffe346ad5b613f41cc23793022173.jpg

据规划图显示,这栋综合楼不但设有交通站场管理用房,还有阅览室、文化活动中心,特别值得期待!项目共规划4层!

f5bd42dcc33402654705cd1c6a372424.jpg

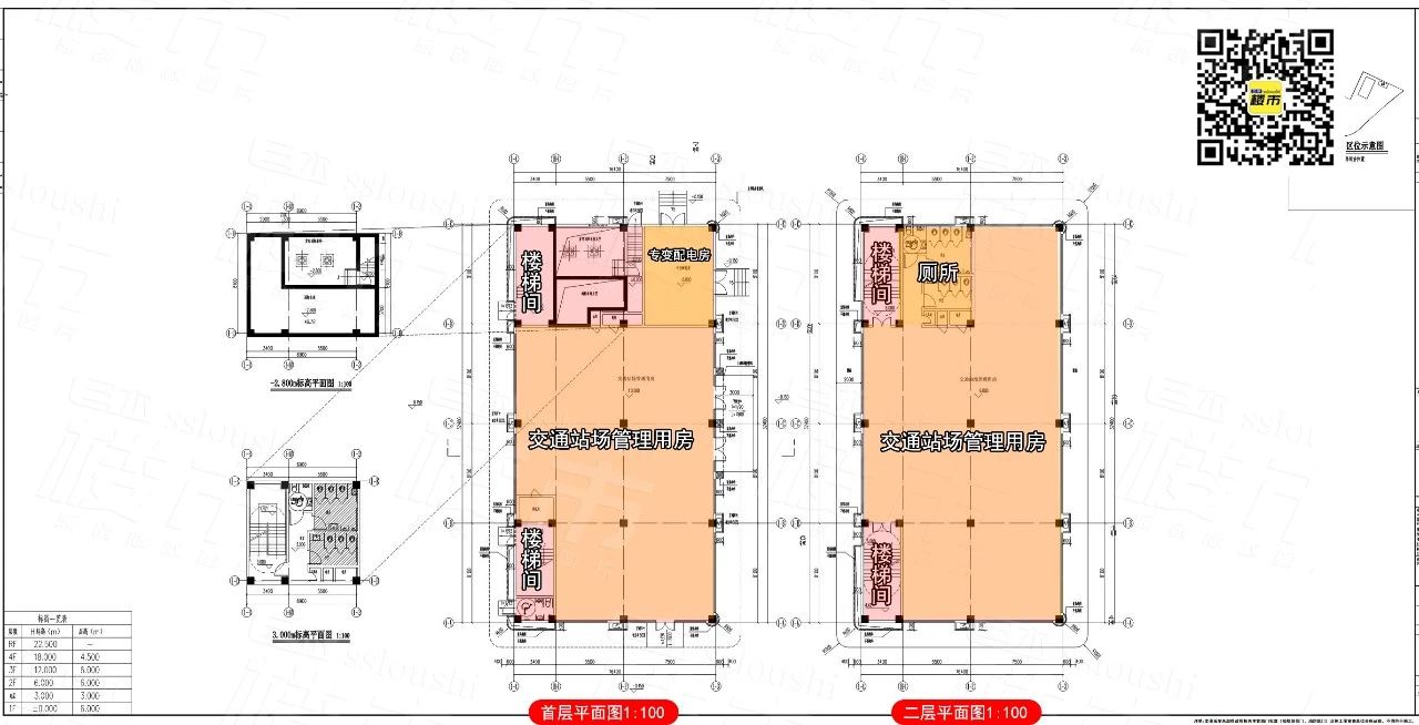
首层和二层为交通站场管理用房,配建了洗手间,消防用房,专变配电房。

8b3b26d8c0f238c1ccd55c2b802f9888.jpg

第三层为阅览室(文化设施用房),第四层为文化活动中心!

64ba8a030f9c712855e3791f394cf5d7.jpg
屋面层平面图

ac276cc9d9368c3f445cde12e3e48c77.jpg
综合楼立面图
51fa576b07410a099229def5be4f6171.jpg
综合楼立面图
8daf98e396d208288374a480d71c7fda.png
日前,佛山市公共资源交易中心还发布了《云东海映海路公交车首末站建设项目(二标)》招标公告。

650e4121d9196b41f611f54d41616b0f.png

公告显示,云东海映海路公交车首末站建设项目(二标)工程主要内容包括综合楼(总建筑面积2258.48㎡,共4层)及其周边绿化、围墙、道路等室外配套工程,一标公交站场出入口减速道路整改、B地块出入口路口转弯半径调整、B地块植草砖车位复绿等建设。

该项目定额工期为241日历天,计划工期为300日历天;招标控制价为 8,066,369.81元!

若此次能成功招标,相信动工日期将不会太远!一旦映海路公交车首末站投用,将惠及三水新城众多人口!

492a4dd4feda77bf559d608542d6f542.png
说到映海路公交车首末站项目,房叔不得不感慨一下映海路的强大!云东海街道映海路是三水新城城市生活配套分布最密集的“配套轴线”,这条路对于三水新城而言,堪比西南街道的三达路!

3c75fe7f0cde8fa40564b19638129203.jpg

映海路全长4公里(数据来自百度测距),南接一环东路、教育东路,北接虹岭路,中间还贯穿桃园西路,交通路网四通八达!道路两旁配套丰富,无论是楼盘、公园、学校、医院还是交通站点,都应有尽有。

bea3abc702686cdcc52d84e0d6a08817.jpg

沿着映海路从南向北走,依次有高丰公园、三江水韵公园、三江水韵篮球公园、荷香湖公园、荷香湖儿童公园等生态休闲公园;还有云东海学校、云东海中心幼儿园、三水新城小学、海蓝城幼儿园、华大星晖高级中学等学府,南方医科大学珠江医院三水医院就在路的尽头。交通站点方面,目前有已投用的高丰公园首末站和待投用的映海路公交车首末站。

据了解,目前映海路两旁有雅居乐雅虎半岛、浅水湾花园、中南远洋漫悦湾、远洋天骄、金融街金悦府、华远海蓝城、保利时代、保利清能和府等楼盘,其中仅海蓝城、保利时代和保利清能和府3个楼盘还有新房在售,其他楼盘均已交付,目前片区二手房均价约8500-10000元/平方米左右!

对于映海路公交车首末站项目的建设你怎么看?,欢迎在评论区留言!END

fdc54c77d0f1f79b7b19a12574bfcb42.png

来源:三水楼市

36f724a16012b82aaa56136d517bc704.png

7b3171c0d6efa8e42846dace8037588d.png


回复

使用道具 举报

0

鲜花

359

回帖

137

积分

中鱼

Rank: 2

发表于 2023-8-30 13:40 手机网页版 | 显示全部楼层 | 来自广东
阅览室和文化活动中心对外开放吗?
回复 支持 反对

使用道具 举报

0

鲜花

197

回帖

113

积分

中鱼

Rank: 2

发表于 2023-8-30 13:41 手机网页版 | 显示全部楼层 | 来自广东
回复

使用道具 举报

0

鲜花

1071

回帖

405

积分

中鱼

Rank: 2

发表于 2023-8-30 13:50 手机网页版 | 显示全部楼层 | 来自广东
有钱,任性!
回复

使用道具 举报

0

鲜花

1001

回帖

1828

积分

铜鱼

Rank: 4

发表于 2023-8-30 14:00 | 显示全部楼层 | 来自广东
很好,非常好!
回复 支持 反对

使用道具 举报

0

鲜花

391

回帖

166

积分

中鱼

Rank: 2

发表于 2023-8-30 16:10 手机网页版 | 显示全部楼层 | 来自广东
小朋友在旁边运动完能上去看书吗?
回复 支持 反对

使用道具 举报

0

鲜花

236

回帖

160

积分

中鱼

Rank: 2

发表于 2023-8-30 16:26 手机网页版 | 显示全部楼层 | 来自广东
回复

使用道具 举报

2

鲜花

299

回帖

210

积分

中鱼

Rank: 2

发表于 2023-8-30 16:47 手机网页版 | 显示全部楼层 | 来自广东
加油站没有影响吗
回复 支持 反对

使用道具 举报

0

鲜花

1056

回帖

443

积分

中鱼

Rank: 2

发表于 2023-8-30 16:50 手机网页版 | 显示全部楼层 | 来自广东
xx小甜心 发表于 2023-8-30 16:47
加油站没有影响吗

加油站有什么影响呢?
回复 支持 反对

使用道具 举报

0

鲜花

1011

回帖

341

积分

中鱼

Rank: 2

发表于 2023-8-30 16:55 手机网页版 | 显示全部楼层 | 来自广东
回复

使用道具 举报

您需要登录后才可以回帖 登录 | 注册账号

本版积分规则