新三水网站-新三水淼才网-佛山相亲派

楼主: Jennica

别人以为我住别墅, 其实我住的是村屋。

[复制链接]

2

鲜花

3896

帖子

7052

积分

金鱼

Rank: 8Rank: 8

发表于 2021-11-30 08:27 | 显示全部楼层 | 来自广东
PPT系列
回复

使用道具 举报

0

鲜花

92

帖子

659

积分

大鱼

Rank: 3Rank: 3

 楼主| 发表于 2021-11-30 08:48 | 显示全部楼层 | 来自广东
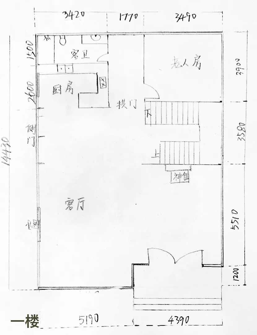
业128 发表于 2021-11-29 14:02
图纸发一下   大家借鉴一下  谢谢

微信图片_20211129140643.jpg 微信图片_20211129140647.jpg
回复 支持 1 反对 0

使用道具 举报

0

鲜花

92

帖子

659

积分

大鱼

Rank: 3Rank: 3

 楼主| 发表于 2021-11-30 08:49 | 显示全部楼层 | 来自广东
999 发表于 2021-11-29 13:59
我觉得外观的我的好少少,主要是斜顶才有档次!

也有想过斜顶,但后面觉得需要用到天台机会挺多
回复 支持 反对

使用道具 举报

0

鲜花

92

帖子

659

积分

大鱼

Rank: 3Rank: 3

 楼主| 发表于 2021-11-30 08:50 | 显示全部楼层 | 来自广东

其实只有四层这样子,跟邻居家高度是一致的
回复 支持 反对

使用道具 举报

0

鲜花

92

帖子

659

积分

大鱼

Rank: 3Rank: 3

 楼主| 发表于 2021-11-30 08:53 | 显示全部楼层 | 来自广东
地球超人 发表于 2021-11-29 14:52
80个包装修家电吗?

全部加起来,17年材料价格没现在高,软装都是淘宝跟找一些二手市场还有宜家,挑实用的,所以软装没有太花钱
回复 支持 反对

使用道具 举报

0

鲜花

92

帖子

659

积分

大鱼

Rank: 3Rank: 3

 楼主| 发表于 2021-11-30 08:53 | 显示全部楼层 | 来自广东
洛克可比 发表于 2021-11-29 15:19
这个图的装修好岩我心水

筹划一下自己家
回复 支持 1 反对 0

使用道具 举报

0

鲜花

92

帖子

659

积分

大鱼

Rank: 3Rank: 3

 楼主| 发表于 2021-11-30 08:54 | 显示全部楼层 | 来自广东

谢谢
回复 支持 反对

使用道具 举报

0

鲜花

92

帖子

659

积分

大鱼

Rank: 3Rank: 3

 楼主| 发表于 2021-11-30 08:57 | 显示全部楼层 | 来自广东
建筑design 发表于 2021-11-29 15:49
钱主要花在装修上了吧。土建没这么贵,立面也挺简约。室内软装有格调,如果日后杂物不大,摆放还这么整齐就 ...

主要家电,装修其实就铺了地板,简单刷了漆而已。
回复 支持 反对

使用道具 举报

0

鲜花

92

帖子

659

积分

大鱼

Rank: 3Rank: 3

 楼主| 发表于 2021-11-30 08:58 | 显示全部楼层 | 来自广东

实际只有4层
回复 支持 反对

使用道具 举报

0

鲜花

92

帖子

659

积分

大鱼

Rank: 3Rank: 3

 楼主| 发表于 2021-11-30 08:59 | 显示全部楼层 | 来自广东
hayley 发表于 2021-11-29 15:56
真的很便宜了,我们家三层装修都花了差不多80万

那你装修肯定很好看,你也看到就简单铺了地板刷了漆而已
回复 支持 反对

使用道具 举报

您需要登录后才可以回帖 登录 | 注册账号

本版积分规则